Proyecto 2 Supermanzana Isla de cuidados

Recuperación patrimonial casa de Blas Infante

Descripción

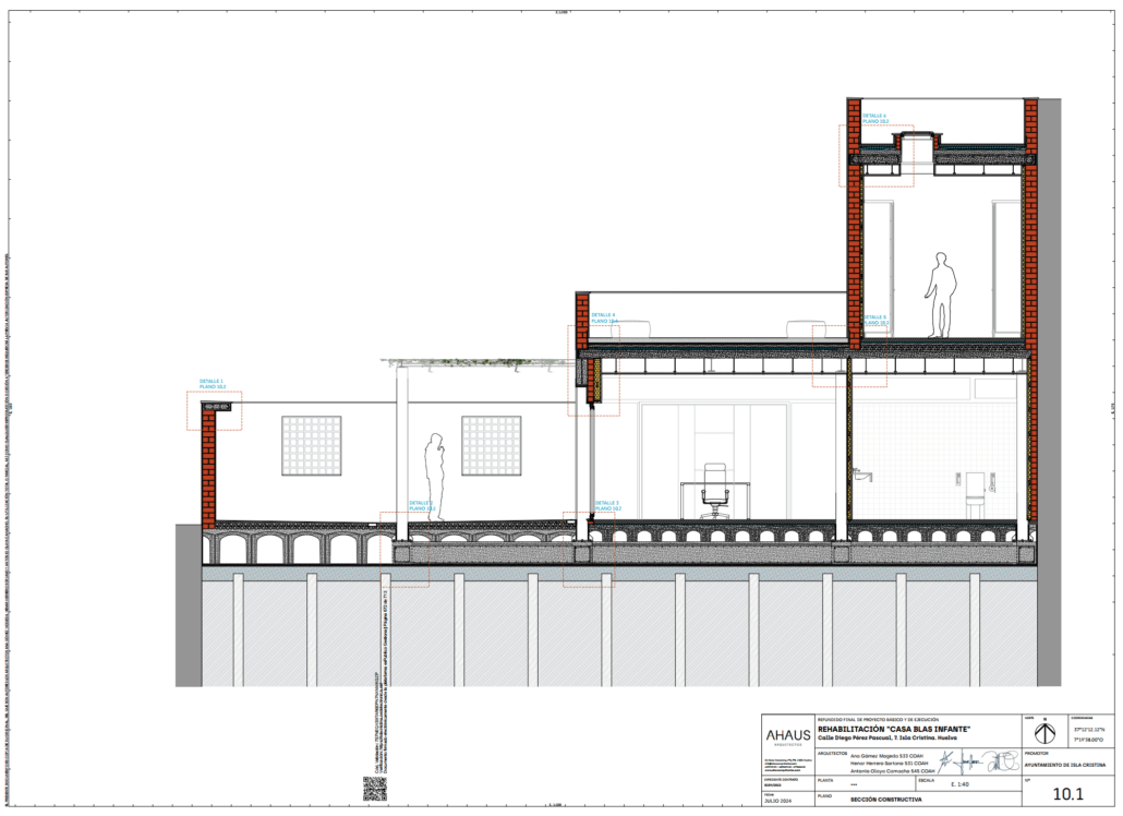
La actuación busca rehabilitar la Casa de Blas Infante para su puesta en valor como elemento integrador de la Ruta de Blas Infante y la preservación del legado histórico y cultural del padre del andalucismo, promoviendo su difusión y fortaleciendo la identidad cultural de la localidad. La recuperación de la Casa de Blas Infante incluirá: la restauración del inmueble respetando su valor histórico y arquitectónico; la creación de un centro interpretativo sobre la vida y legado de Blas Infante; la mejora del entorno urbano con mobiliario, señalética accesible y zonas de sombra; y la integración de soluciones TIC para la difusión del patrimonio cultural.

628.844,09

Presupuesto previsto

Plazo de ejecución: 2 años

Objeto y justificación

Esta actuación responde, por un lado, al deficiente estado de conservación de la Casa Blas Infante, resultado de una falta de mantenimiento prolongada en el tiempo. Asimismo, prentende satisfacer la necesidad de equipamientos adecuados en el casco histórico de Isla Cristina, alineándose con la estrategia del Plan de Barrios y el Plan de Calidad Turística. El proyecto contribuirá a potenciar la visibilidad de la Ruta de Blas Infante a nivel local, nacional e internacional, así como al desarrollo de infraestructuras turístico-culturales, el fomento del turismo cultural y sostenible, y el desarrollo de la economía local.

Objetivo estratégico:  1

Objetivo específico:  1.2

Tipo de acción:  4

Subtipo de acción:  4.1

Retos:

R2. Reto económico

R3. Reto social

R6. Reto político y cultural

EDIL AU LPGC

4. Inventario integrado del patrimonio material e inmaterial

Ambito de intervención

TI00166. Protección, desarrollo y promoción del patrimonio cultural y los servicios culturales

Indicadores de realización

RCO 77. Número de infraestructuras culturales y turísticas apoyadas (1)

Indicador de resultados

 RCR 77. Visitantes de instalaciones culturales y turísticas apoyadas (825)

Viabilidad legal y técnica:

Alineado con el Objetivo Específico 6.3.4 del POPE FEDER 2021-2027. Vinculado al Plan de Acción AUIC 2030 y recogido en el Plan de Calidad Turística.

Trabajos previos: proyecto técnico aprobado y visado y proyecto de ejecución adjudicado.

Integración de criterios de accesibilidad universal, igualdad de género y sostenibilidad.

Gestión y control de la operación

La unidad ejecutora de esta operación será el Área de Obras y Urbanismo en coordinación con las Áreas de Turismo, Patrimonio y Biblioteca municipal.

En tareas de gestión y control: Planificación y proyectos (UG), Secretaria General, Intervención y Tesorería (UAC)