Proyecto 2.4 Supermanza Isla de Cuidados
Centro de formación y espacio de dinamización comunitaria
Descripción
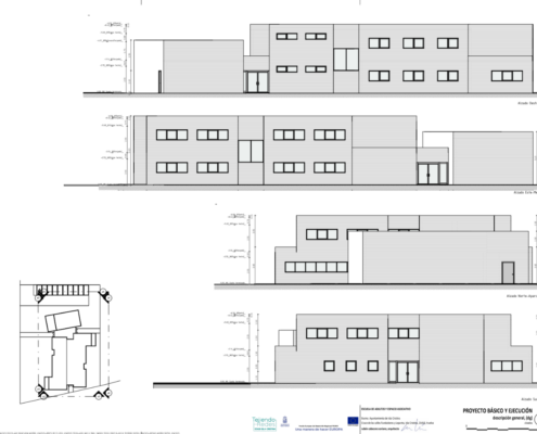
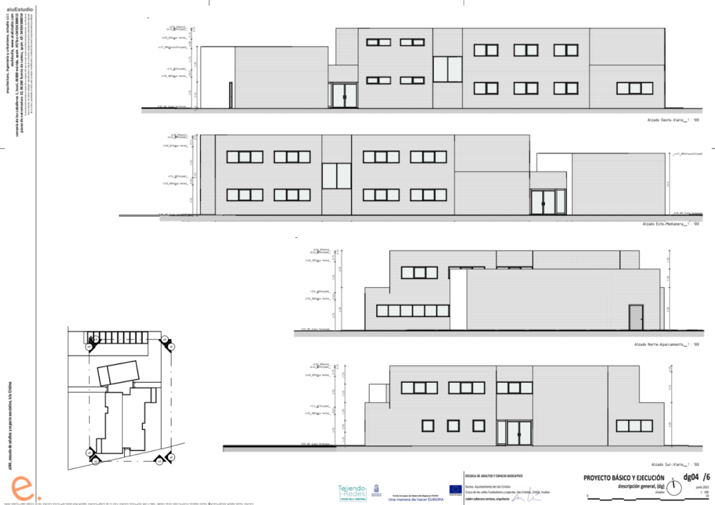
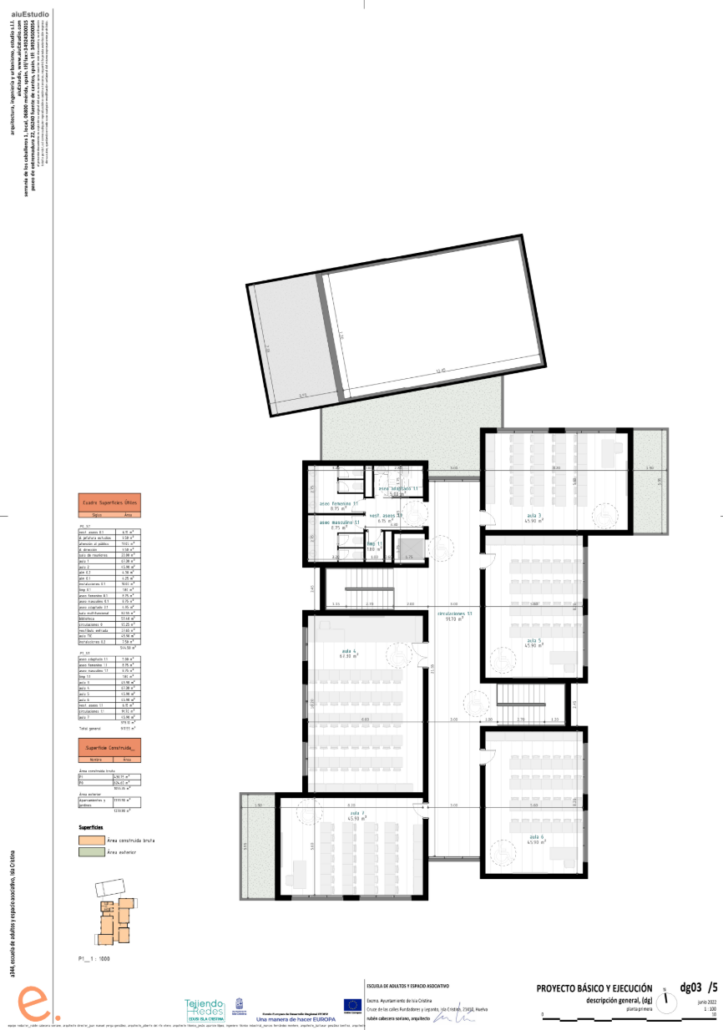
Construcción de equipamiento público destinado a la formación y atención a la ciudadanía, promoviendo la dinamización comunitaria y la inclusión social en una zona prioritaria de transformación del municipio. La intervención abarca las Bda. del Rocío, Jesús del Gran Poder, Plaza Estibadora, Bda. del Cortijo y Los Pisos Blancos, incluidas en el Plan Local de Intervención en Zonas Desfavorecidas 2023-2028. Se crearán dos espacios complementarios: un centro de formación de adultos destinado a la educación de adultos, formación técnica y profesional, obtención del graduado en ESO y preparación para ciclos formativos; y un espacio de dinamización comunitaria dotado de biblioteca, sala de estudios y punto de encuentro para asociaciones y vecinos.
Presupuesto previsto
Plazo de ejecución: 3 años
Objeto y justificación
Esta actuación responde a la necesidad de equipamientos adecuados en las zonas más vulnerables de Isla Cristina, alineándose con la
estrategia del Plan de Barrios, que busca dotar a cada distrito o supermanzana de infraestructuras adaptadas a sus necesidades. El proyecto abordará problemáticas identificadas en el PLIZD y la Estrategia Regional ERACIS, como la alta densidad poblacional, el bajo nivel educativo, la desigualdad de renta y el escaso acceso a formación en TIC. Los nuevos equipamientos contribuirán a mejorar el acceso a la educación y formación para el empleo, favoreciendo la inclusión social y la participación comunitaria, y fomentarán la interacción social e integración de colectivos específicos (jóvenes, mujeres, grupos étnicos o culturales)
Objetivo estratégico: 6
Objetivo específico: 6.2
Tipo de acción: 3
Subtipo de acción: 3.1
Retos:
R2. Reto económico
R3. Reto social
R5. Reto demográfico
EDIL AU LPGC
62. Centro de adultos y formación profesional
Viabilidad legal y técnica:
- Alineado con la Estrategia Regional ERACIS y el Plan Municipal de Vivienda.
- Recogido en el Plan de Acción AUIC 2030 y priorizado en el Programa Operativo Anual (PROA) 2024.
- Existencia de proyecto Técnico y Proyecto de Obra completo.
- Trabajos previos ejecutados en un 10% (EDUSI)
- Coordinación con la Oficina de Rehabilitación, Vivienda y Desarrollo Comunitario.
Ambito de intervención
TI00127. Otras infraestructuras sociales que contribuyen a la inclusión social en la comunidad
Indicadores de realización
RCO 113. Población cubierta por proyectos en el marco de la inclusión socioeconómica de las comunidades marginadas, las familias con bajos ingresos y los colectivos menos favorecidos (5.329)
Indicador de resultados
ESR 113. Número de personas beneficiarias de actuaciones de inclusión social (10.658)
Gestión y control de la operación
La unidad ejecutora de esta operación será el Área de Obras y Urbanismo en coordinación con Educación y Servicios Generales.
En tareas de gestión y control: Planificación y proyectos (UG), Secretaria General, Intervención y Tesorería (UAC)
Proyecto 1 CIUDAD ADAPTADA FRENTE A RIESGOS CLIMÁTICOS
Adaptación de Isla Cristina ante eventos climáticos extremos, con infraestructura hidráulica, drenaje optimizado y otras medidas para fortalecer la respuesta ante emergencias.
Proyecto 2 SUPERMANZANA ISLA DE CUIDADOS
Impulso para la creación de supermanzanas de cuidados en Isla Cristina, integrando movilidad ciclista, infraestructura verde y urbanismo táctico para un entorno accesible, seguro y sostenible.



















